
本裝潢個案,很榮幸能透過《漂亮家居》雜誌,讓屋主找到權釋設計團隊。
秀朗路王公館屋主的需求和想法
現任職房仲業的屋主王先生,將於10月份與王太太完成終身大事。王先生用專業眼光為兩人挑選嫻靜清閒的住屋環境,做為將來最溫暖的依偎,設計團隊也決心為屋主打造出甜蜜幸福的居家環境。屋主將各項使用需求娓娓道來,給了設計團隊明確的方向:
1.以新婚夫妻之需求設計,需要主臥室,更衣室,小孩房,客房。
2.安靜閱讀空間,供夫妻倆看書休閒、及未來小孩溫習課業之書房區域。
3.大同寶寶公仔收藏家,夫妻倆希望可隨時欣賞收藏許久的大同寶寶們。
4.室內健身運動空間,預計放置一台跑步機,養成良好的運動習慣。
5.改變客廳格局,使客廳更加寬闊氣派。
6.吧台式下午茶小空間,享受悠閒時光並增加生活情趣。
7.冷色調色系主軸-屋主王先生的個性選擇。
設計師的設計初衷
設計師瞭解屋主的需求後,確認屋主偏愛極簡設計風格,搭配主色系主軸冷調系列,將呈現出低調奢華的氣氛,並歸納了以下幾點想法:
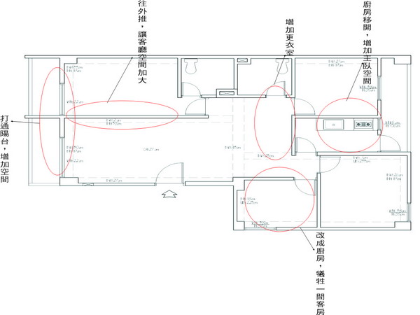
隔間方面:A.客廳及主臥位於本案左側,在考量屋主需求後,便將主臥移至右側,並修改原有隔間牆以增加客廳間,原主臥空間即可做為多功能書房使用。
B.主臥室移到右側後,原有隔間無法負荷主臥室的空間需求,故將廚房移到原下方客房位置,原餐廳位置增加隔間做為更衣室,滿足新婚夫妻對大主臥之需求。
C.廚房移至原客房位置後,空間較原廚房更加方整,將其做為開放式空間並增加分隔吧台區;而修正後之餐廳位置更可充分利用玄關右側空間。
色系方面:屋主酷愛冷調系列,選用的壁紙、門片、桌椅、沙發、床單等皆以灰銀黑三大色系為主,營造室內的低調奢華氣息。
書房方面:擺放長形書桌,無論是夫妻相隨、親子之樂都是很棒的設計,減少互相的隔閡,讓家人更為親近。
收藏方面:在書房上設計長排收藏櫃,客廳旁置物櫃也設計成玻璃門片,讓夫妻倆及訪客可隨時欣賞屋主最珍貴的收藏品-無所不在的<大同寶寶>。
空間視覺:書房和客廳的隔間利用穿透性玻璃讓空間視覺加大。
客房方面:因為屋主目前沒有小孩,保留一間房間目前當客房,將來當小孩房,如有客人來時(大多都是很親近的),再請小孩睡書房。


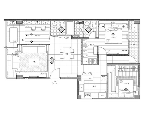
設計完成之平面圖,符合屋主各項考量並充分利用空間。

穿透式玻璃

冷調色系

大同寶寶
設計過程中,面臨的問題
在木工退場前,屋主遠在金門的父親來台灣巡視裝潢狀況,並追加了一些設計考量。
1. 風水問題-大門不應正對廁所。客浴原始設計即為內推式,但在此考量下仍追加了一道屏風。
2. 主臥私密性及空間感-原始設計下在主臥跟更衣室應有區隔,但屋主父親認為主臥為夫妻之私密空間,可以捨去這道門增加空間感,並在更衣室裡多加了一個梳妝台供女主人使用。
3. 整體設計感-原本部分櫃子及傢俱屋主打算自行購買,但父親認為裝潢經過設計應要力求完美及整體感,後續才由設計團隊接手設計及趕工,導致完工時間有點延遲。

加了一道屏風

加了梳妝台
工程過程中,面臨的問題
屋主特別要求室內挑高,因此在設計天花板時,設計團隊大膽的在部份區域採直接露出樓板之方式,且因屋況良好使油漆完成後非常平整,但若屋況不好切記不可以這樣做。
PS因間接照明之燈光直射天花板會有樓板凹凸的狀況。

結案心得
從4月25號簽約,開工到完工7月20日,總共經過了3個月多的時間,屋主不顧風雨的每天到工地關心現狀,屋主覺得需要修改,就當場與監工溝通協調,讓設計團隊第一時間得知而更改設計,不會導致快完工時,才提出問題造成工期延長或是產生調度工班的困擾,兩方面都會造成麻煩,和屋主的配合都很輕鬆與自在。
屋主對於屋子的執著,令我們感到驚訝以及感動,從找房子到裝潢,每天到現場巡視以及關心,相信他對太太的專情度也是毋庸置疑的,能幫屋主倆設計和裝潢設計團隊真是感到很榮幸。
權釋設計團隊 祝屋主
留言列表